Een schitterend royaal modern en duurzaam 4-kamer appartement van ca. 113m2 gelegen in hartje Ypenburg met alle voorzieningen binnen handbereik en fantastisch weids uitzicht over water en groen.
Indeling;
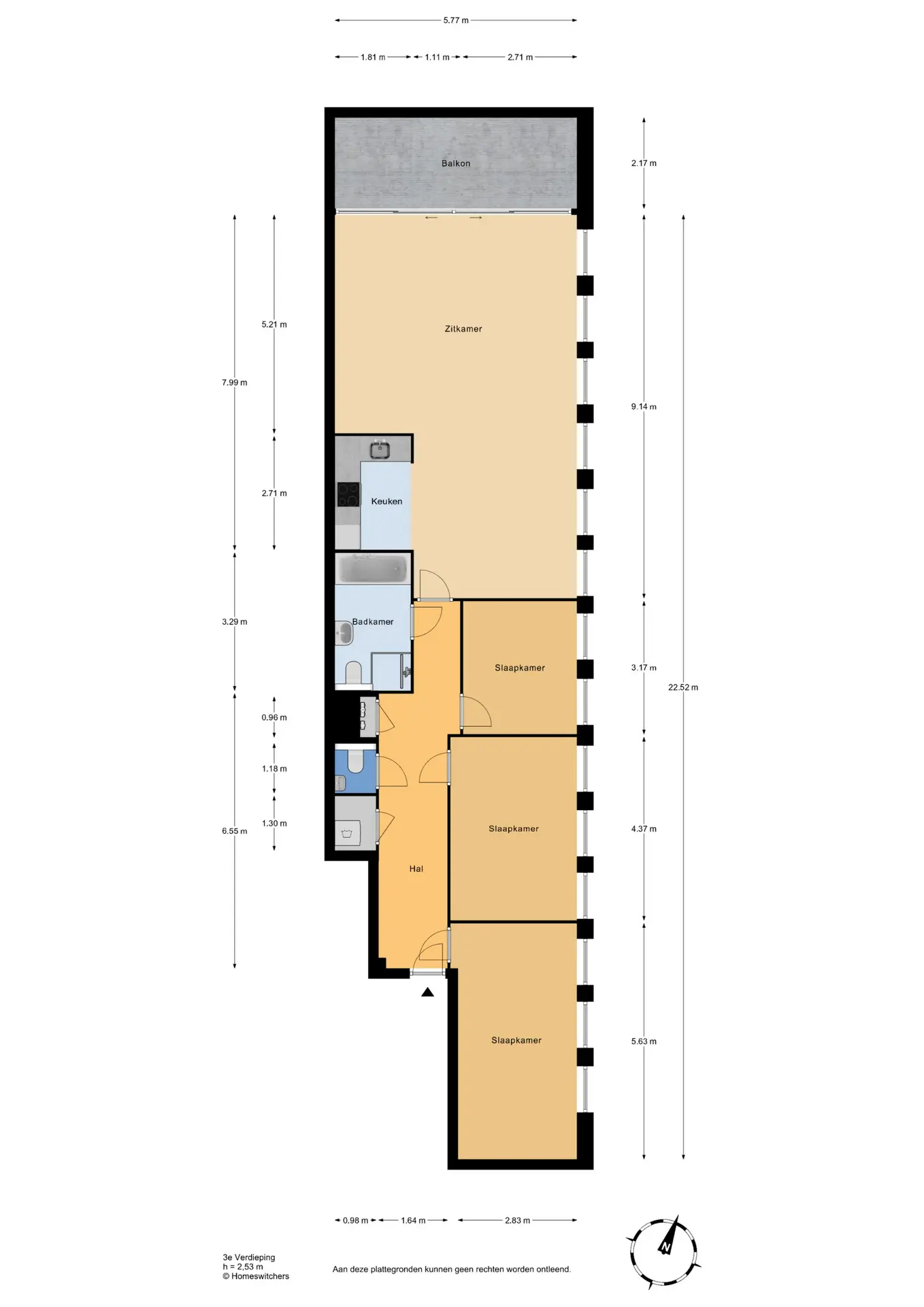
Entree complex via gesloten hoofdentree met brievenbussen en bellentableau. Via de centrale hal heeft u de toegang tot de lift, het trappenhuis, de fietsenbergingen en de externe berging. Het appartement bevindt zich op de derde verdieping van het complex. Bij binnenkomst in het appartement treedt u binnen in de centrale hal die toegang biedt tot de verschillende vertrekken van de woning en waar de garderoberuimte, het toilet en de meterkast (met glasvezelvoorbereiding en aansluiting op stadsverwarming) zich bevinden. Er is tevens een interne bergruimte met mechanische ventilatie en ruimte voor zowel een wasmachine als een droger. Praktisch en netjes uit het zicht.
Wonen;
De zeer ruime woon- en eetkamer vormt het hart van het appartement. Dankzij de open indeling en het vele lichtinval is dit een fijne plek om te ontspannen of gasten te ontvangen. Via de woonkamer is er toegang tot het zonnige terras waar je heerlijk kunt genieten van het uitzicht!
Koken;
De nieuwe open keuken is uitgevoerd in een praktische L-vorm. De keuken is uitgerust met diverse inbouwapparatuur, waaronder een inductiekookplaat, afzuigkap, combi magnetron/oven, koel- en vrieskast, vaatwasser en een spoelbak met een mengkraan.
Slapen;
Het appartement beschikt over maar liefst drie slaapkamers, waaronder een royale master bedroom met een brede raampartij die zorgt voor veel natuurlijk licht en een weids uitzicht over groen. De overige twee slaapkamers zijn eveneens van goed formaat en in te richten als kinderkamer, werkkamer of logeerruimte.
De badkamer is modern en neutraal afgewerkt en is voorzien van alle comfort: een ligbad met handdouche en een mengkraan, een ruime douchehoek, een wastafel, een designradiator en een tweede vrij hangend toilet.
Omgeving;
Dit royale appartement heeft alle benodigde voorzieningen in de directe omgeving, waaronder winkelcentrum Ypenburg met twee supermarkten, winkels, restaurants, het natuurgebied Delftse Hout, waterrijk De Dobbeplas, diverse (basis)scholen, openbaar vervoer (directe tramverbinding naar het Den Haag centrum en Delft) en meerdere uitvalswegen naar de A4, A12 en A13.
Aanvullende informatie:
Bouwjaar 2001;
Gelegen op eigen grond;
Actieve VvE met een maandelijkse bijdrage van € 305.-
Woonoppervlakte ca.113m²;
Energielabel A+;
3 slaapkamers;
Zonnig terras met een schitterend uitzicht;
Eigen berging in de bovenbouw;
Notariskeuze voorbehouden aan verkoper;
In de koopovereenkomst worden de ouderdoms-, niet bewoners en as-is, where clausule opgenomen;
Voor de indeling en maatvoering wordt verwezen naar de plattegronden;
Aanvaarding in overleg.
Een unieke kans op een perfect onderhouden, duurzaam en stijlvol appartement op een toplocatie. Wacht niet te lang dit is er één die u gezien móét hebben!
Interesse? Maak snel een afspraak voor een bezichtiging en ervaar zelf het comfort, de ruimte en het prachtige uitzicht dat dit appartement te bieden heeft.
Bovenstaande informatie is door ons met de hoogst nodige zorgvuldigheid samengesteld. Door ons kantoor wordt echter geen enkele aansprakelijkheid aanvaard voor enige onvolledigheid, onjuistheid of anderszins, dan wel de gevolgen daarvan. Alle opgegeven maten en oppervlakten zijn indicatief. De woning is gemeten met gebruikmaking van de Meetinstructie, die is gebaseerd op de normen zoals vastgelegd in NEN 2580. De Meetinstructie is bedoeld om een meer eenduidige manier van meten toe te passen voor het geven van een indicatie van gebruiksoppervlakte. De Meetinstructie sluit verschillen in meetuitkomsten niet volledig uit, door bijvoorbeeld interpretatieverschillen, afrondingen of beperkingen bij het uitvoeren van de meting. Hoewel wij de woning zorgvuldig hebben opgemeten, wordt noch door ons, noch door de verkoper enige aansprakelijkheid aanvaard voor afwijkingen in de opgegeven maten. Koper wordt in de gelegenheid gesteld om de opgegeven maten te (laten) controleren”.